Trilocale in vendita

Taranto, Via Filippo Brunelleschi - Talsano
€ 90.000
3 locali 3 locali
110 Mq 110 Mq
1 bagno 1 bagno

Trilocale in vendita

Taranto, Via Filippo Brunelleschi - Talsano

Descrizione annuncio

VIA BRUNELLESCHI-Nel cuore della località di Talsano, nel comune di Taranto, si propone in vendita un appartamento di 110 mq, situato al piano basso di un edificio costruito nel 1975. L'immobile, di categoria media, offre tre locali spaziosi che possono essere personalizzati secondo le proprie esigenze. La posizione è ideale per chi cerca una zona residenziale tranquilla, lontana dal caos cittadino ma comunque ben collegata alla città di Taranto. I principali servizi, come scuole, negozi e trasporti pubblici, sono facilmente raggiungibili, rendendo la vita quotidiana comoda e agevole. L'appartamento necessita di lavori di ristrutturazione, offrendo l'opportunità di creare uno spazio abitativo su misura, che rispecchi il proprio stile e le proprie necessità. Una soluzione interessante per chi desidera investire in una proprietà con potenziale, in un contesto sereno e ben servito.

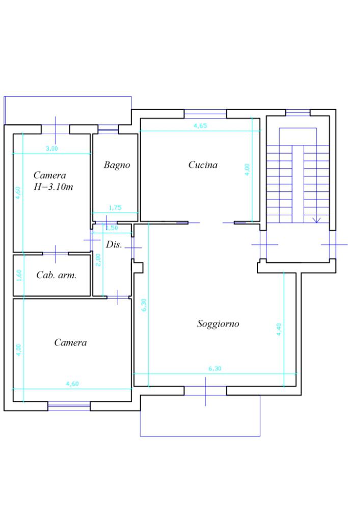
Nell'annuncio è inserita una planimetria dello stato di fatto attuale ed un altra planimetria di una possibile ridisposizione degli ambienti con la zona giorno e la zona notte ottimizzate

Mostra tutto

Nelle vicinanze

Trasporto pubblico Trasporto pubblico
CTP
CTP
1,9 Km
Linea A.m.a.t. n° 23
Linea A.m.a.t. n° 23
2,4 Km
Ricariche auto elettriche Ricariche auto elettriche
CONCESSIONARIO NISSAN FIVE MOTORS S.R.L.
2,6 Km
Scuole Scuole
Scuole
110 m
Istituto Alberghiero
2,8 Km
Farmacia Farmacia
Farmacia
350 m
Supermercati Supermercati
IperFamila
1,3 Km
Lidl
1,4 Km
Supermercati
1,9 Km
Dok Supermercati
2,5 Km
Eurospin
3,0 Km
Negozi Negozi
Alimentari F.lli Macripò
190 m
Panificio Chiarelli
2,8 Km
Bar Bar
Bar
330 m
Mostra tutto

Caratteristiche

Rif.:
61044104
Piano:
1 (Piano basso)
Balconi:
2
Camere da letto:
2
Arredamento:
Assente
Condizionamento:
Assente
Mostra tutto
Prezzo Prezzo
€ 90.000
Rata mutuo Rata mutuo
€ 424 / mese
Proponi il tuo prezzoProponi il tuo prezzo

Classe Energetica

G
G
G
G
G
G
G
G
G
EP globale non rinnovabile:
153.02 kW h/m² anno
EP globale rinnovabile:
30.72 kW h/m² anno
EP invernale del fabbricato:
EP estiva del fabbricato:
Anno di costruzione:
1975
Riscaldamento:
Autonomo
Tipo impianto:
A radiatori
Tipo alimentazione:
Altro

Ti interessa visionare l'immobile?

Fissa un appuntamento  Fissa un appuntamento

Richiedi informazioni

Clicca su Leggi per aprire l'informativa
* Questi campi sono obbligatori

Calcola il tuo mutuo

Semplice e senza impegno
Anticipo

( % )
Mutuo

( % )

pochi semplici passi

inserisci i tuoi dati
Questionario completato
Grazie per aver richiesto un appuntamento senza impegno con un nostro Consulente del Credito e Assicurativo.

Hai inserito correttamente tutti i dati necessari e a breve riceverai una e-mail con un link da convalidare per inviare i tuoi dati.
Affiliato
Re Mida Srl
Via Puglia, 108 74121 Taranto (TA)
Via Puglia, 108 74121 Taranto (TA)
Zona: Taranto-Rione Italia - Montegranaro
Mostra su mappa
Orari: dal Lunerdì al Venerdi 08.30/13.00 - 16.00/20,30; Sabato 08.30/13.00. Sabato pomeriggio e domenica su appuntamento
Affiliato
Re Mida Srl
Via Puglia, 108 74121 Taranto (TA)

2026 Tecnocasa Franchising S.p.A. - P. IVA 08365160152 - Via Monte Bianco 60/A 20089 Rozzano (MI). Ogni agenzia ha un proprio titolare ed è autonoma. Privacy policy | Policy utilizzo | Cookie policy